0
Skip to Content
JUSTIN BARRETT : Restaurant Design
Projects
About
Contact
Open Menu
Close Menu
JUSTIN BARRETT : Restaurant Design
Projects
About
Contact
Open Menu
Close Menu
Projects
About
Contact
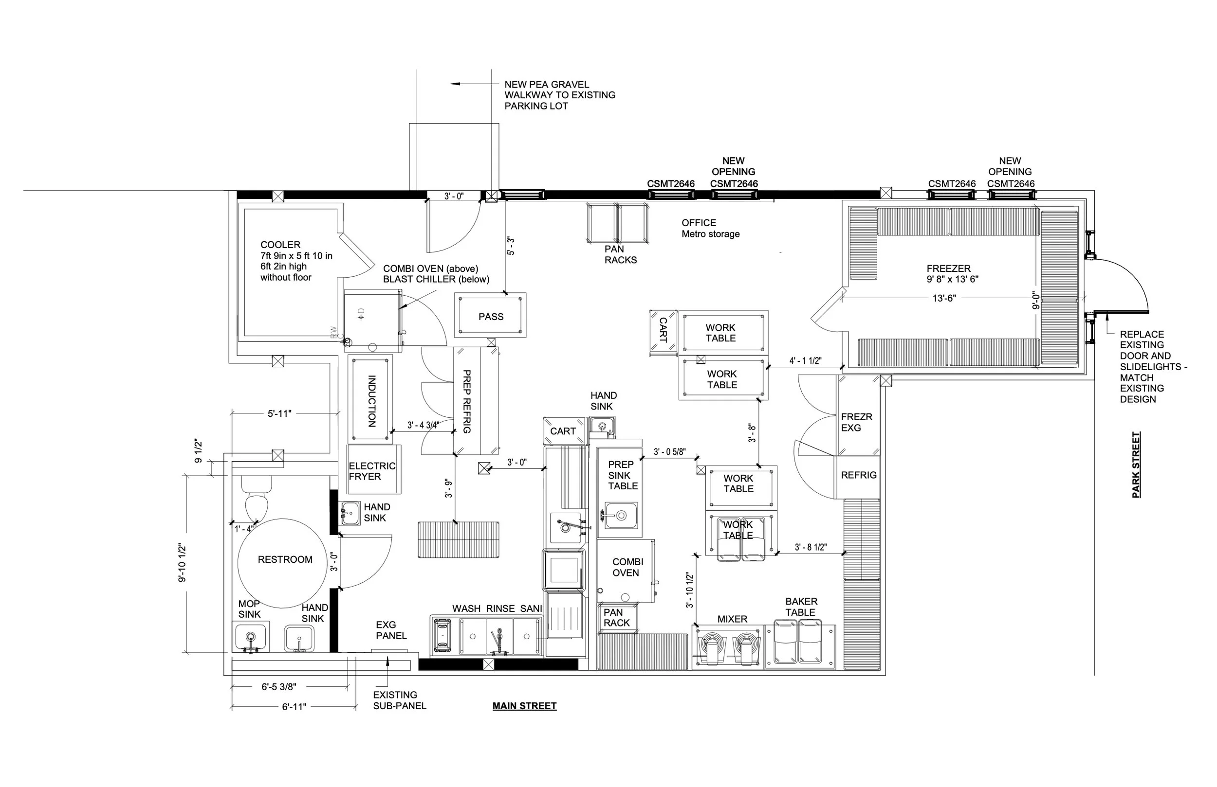
Piecemeal Pies
• 112 Main St, Stowe VT •
Previous
Previous
Piecemeal Pies - White River Junction, VT
Next
Next
Salt Water Farm at Union Hall - Rockport, ME